Ir al contenido principal

Solicitud de presupuesto

Estantería de paletas

Rellene el mayor número posible de campos y haga clic en "Enviar solicitud". Puede introducir información adicional para una consulta ampliada o un presupuesto individual al final del formulario, en "Información adicional".

Datos generales:
¿Qué quiere almacenar?
Tipo de estantería:
Instalación / Utilización:
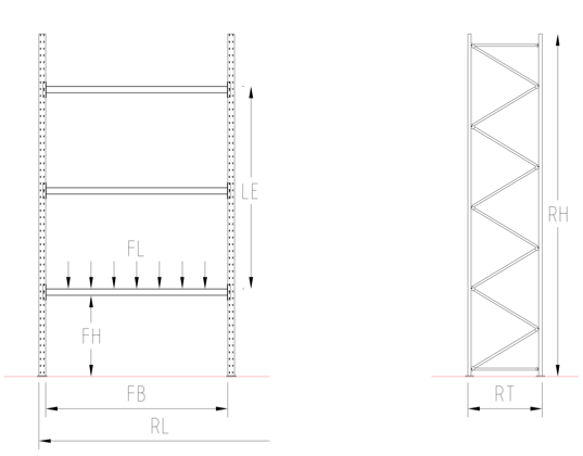
Dimensiones de la estantería:
(Opcional, véase la leyenda para la explicación de las unidades).
Capacidad de carga:
(Consulte la leyenda para ver la explicación de las unidades)
Para instalación exterior con techo:
Color de estantería:
Montaje:
Benefíciese de una instalación experta por parte de nuestros equipos de instalación OHRA formados.
Información complementaria:
Absenden